MVA Trauma Rehab

Home > Projects > MVA Trauma Rehab

Service :

Full Interior Design

Location:

11th Street, NY​

Category:

Healthcare

Project Story

Located in New York City’s West Village, the MVA Trauma Rehab Center at 377 W 11th Street was thoughtfully designed to provide a warm, welcoming, and functional environment for individuals recovering from motor vehicle accidents. Moving beyond a clinical atmosphere, the space emphasizes comfort, security, and holistic well-being through the use of soft textures, warm tones, and home-like furnishings. From the calming reception area to advanced treatment rooms, every detail supports recovery and emotional ease. The center includes specialized patient rooms, therapy spaces, a wellness lounge, and educational areas—each designed to empower patients, promote resilience, and support their reintegration into daily life.

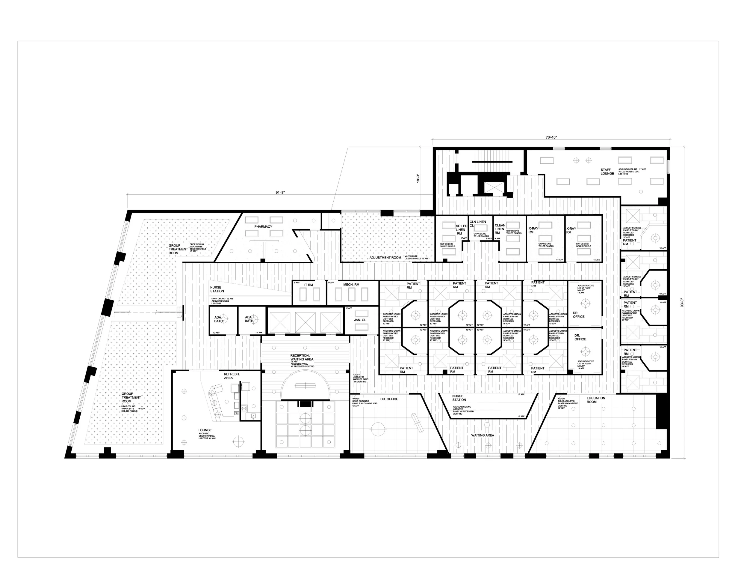
RCP

floor plan 2d sketch

Rendered Floor Plan

rendered floor plan

Axonmetric

axonmetric of mva trauma rehab center

Reception

mva center reception 3d design

Dr. Office

dr office mva trauma rehab center

Patient Room

mva center patient room

Group Treatment Room

group treatment room new york
group treatment room with fitness equipment 3d interior render new york

© 2025 | Inspired by Brenda. All Rights Reserved. 

Made with 🤍 by Priyash Kadu